For Sale Hanbury Lane, Haywards Heath, RH16 3US Guide Price £465,000
Stylish End of Terrace House
Bright & Contemporary Interior
Walk of Station & Town Centre
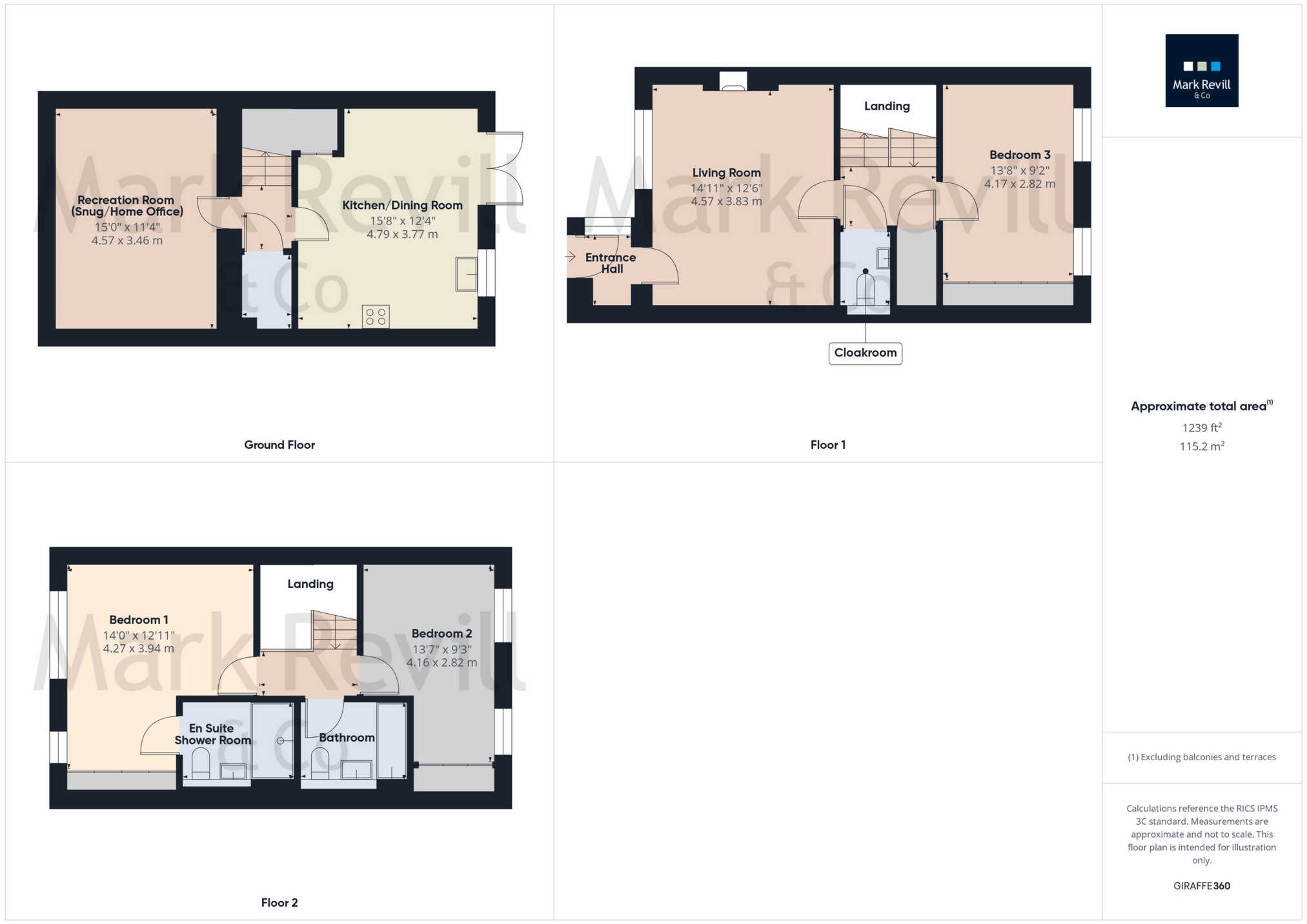
3 Double Bedrooms
2 Shower/Bathrooms
Excellent Fitted Kitchen with Dining Room
Recreation Room
Gas CH. Double Glazing.
Solar Roof Tiles
Off Road Parking for 2 Vehicles
EPC Rating C
Council Tax Band D, Mid Sussex District Council
Freehold
This stylish end of terrace house is built to an extremely high standard by Linden Homes and was constructed in 2012. The contemporary interior offers bright and well designed accommodation arranged over three floors having the benefit of gas central heating, double glazing and solar roof tiles and incorporates 3 double bedrooms, luxury en suite shower room to the main bedroom, modern bathroom, cloakroom, a fine south facing living room, a good size recreation room (presently used as a snug/home office) and a comprehensively fitted kitchen/dining room complete with appliances. There is a block paved drive at the front offering parking for 2 vehicles and the most attractive landscaped rear garden extends to about 32 feet in length arranged as a paved sun terrace, lawn, and timber decking at the far end with a shed and covered storage space to one side.
Situated in this popular convenient location just a few minutes’ walk of a local parade of shops and well regarded schools. Haywards Heath mainline station is close at hand offering a fast and frequent service to central London (Victoria/London Bridge 42-45 minutes), the town centre is also nearby with its comprehensive range of shops and array of restaurants in The Broadway whilst the picturesque village of Lindfield is within easy reach as is the Dolphin Leisure complex, Sainsbury's and Waitrose superstores. The A23 lies about 5 miles west of the town providing a direct route to the motorway network, Gatwick Airport is 13.8 miles to the north and the cosmopolitan city of Brighton and the coast is about 15.6 miles to the south, whilst the South Downs National Park is within a short drive offering a beautiful natural venue for countryside walking.
 
 
 
 
    IMPORTANT NOTICE FROM MARK REVILL
Descriptions of the property are subjective and are used in good faith as an opinion and NOT as a statement of fact. Please make further specific enquires to ensure that our descriptions are likely to match any expectations you may have of the property. We have not tested any services, systems or appliances at this property. We strongly recommend that all the information we provide be verified by you on inspection, and by your Surveyor and Conveyancer.
 
 
         
    
    
        
    
        
            
            
        
    





























































 
                 
                